€ 939.582

Moderne nieuwbouwwoning op een exclusief perceel te koop

  • Icoon woonoppervlakte | Casteels Vastgoed - vastgoed dat raakt in Oost-Vlaanderen

    234 m²

  • Icoon grondoppervlakte | Casteels Vastgoed - vastgoed dat raakt in Oost-Vlaanderen

    5746 m²

  • Icoon Slaapkamers | Casteels Vastgoed - vastgoed dat raakt in Oost-Vlaanderen

    3

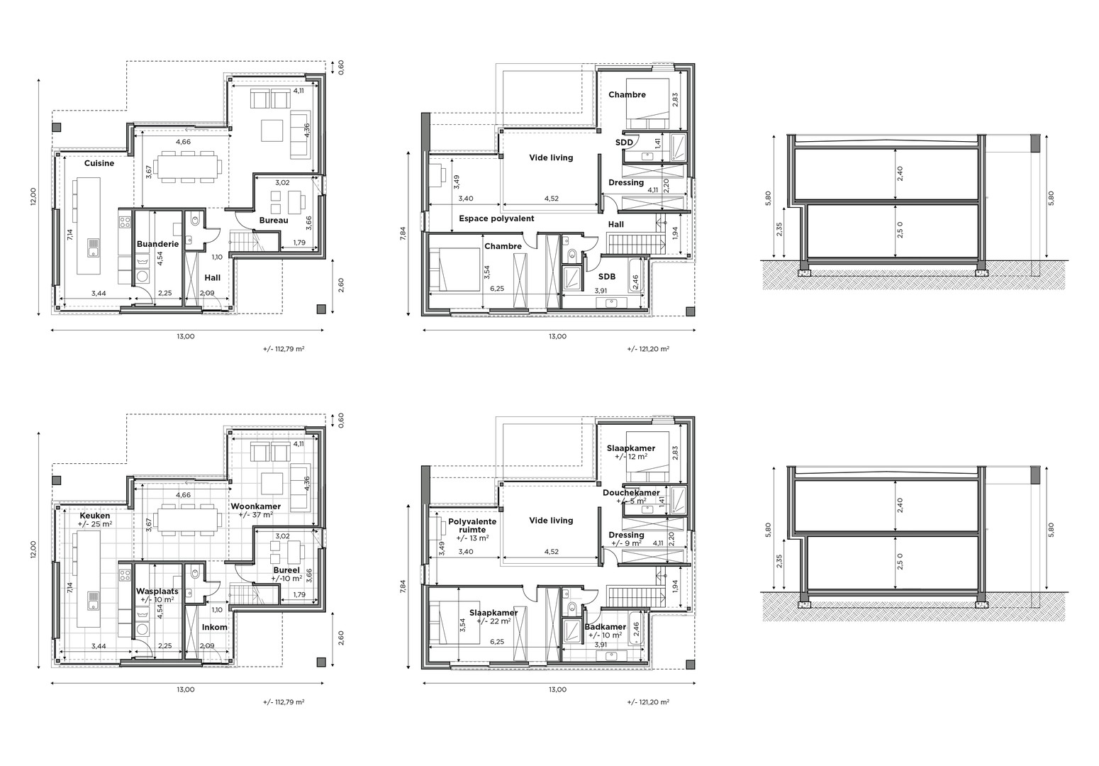
Deze moderne nieuwbouwwoning is een voorbeeld van wat mogelijk gebouwd kan worden op een perceel naar keuze, in samenwerking met bouwfirma Blavier.

De woning valt op door haar strakke architectuur, warme houtaccenten en grote raampartijen die zorgen voor een aangename lichtinval en een open karakter.

Op het gelijkvloers bevindt zich een ruime leefruimte van 37 m² die in verbinding staat met de eetkamer en een open keuken van 25 m².
De grote glaspartijen zorgen voor een directe relatie met de tuin en het terras.
Verder zijn er een inkomhal met vestiaire, een praktische wasplaats van 10 m² en een aparte bureauruimte.

Op de verdieping bevinden zich twee ruime slaapkamers, waaronder een master bedroom met dressing en eigen douchekamer.
Daarnaast is er een tweede badkamer met ligbad, een open vide die uitgeeft op de leefruimte én een derde slaapkamer, die momenteel aangeduid staat als polyvalente ruimte van 13 m².
Deze ruimte biedt voldoende plaats om ingericht te worden als volwaardige slaapkamer.

Dit ontwerp is louter ter inspiratie en niet definitief. Kopers hebben volledige vrijheid om samen te werken met een eigen architect en een woning te realiseren die volledig aansluit bij hun wensen, stijl en budget. Zowel de indeling als de afwerking kunnen volledig naar eigen voorkeur worden aangepast.

Voor meer informatie of een vrijblijvend gesprek over de mogelijkheden, neem gerust contact op.

Deze moderne nieuwbouwwoning is een voorbeeld van wat mogelijk gebouwd kan worden op een perceel naar keuze, in samenwerking met bouwfirma Blavier.

De woning valt op door haar strakke architectuur, warme houtaccenten en grote raampartijen die zorgen voor een aangename lichtinval en een open karakter.

Op het gelijkvloers bevindt zich een ruime leefruimte van 37 m² die in verbinding staat met de eetkamer en een open keuken van 25 m².
De grote glaspartijen zorgen voor een directe relatie met de tuin en het terras.
Verder zijn er een inkomhal met vestiaire, een praktische wasplaats van 10 m² en een aparte bureauruimte.

Op de verdieping bevinden zich twee ruime slaapkamers, waaronder een master bedroom met dressing en eigen douchekamer.
Daarnaast is er een tweede badkamer met ligbad, een open vide die uitgeeft op de leefruimte én een derde slaapkamer, die momenteel aangeduid staat als polyvalente ruimte van 13 m².
Deze ruimte biedt voldoende plaats om ingericht te worden als volwaardige slaapkamer.

Dit ontwerp is louter ter inspiratie en niet definitief. Kopers hebben volledige vrijheid om samen te werken met een eigen architect en een woning te realiseren die volledig aansluit bij hun wensen, stijl en budget. Zowel de indeling als de afwerking kunnen volledig naar eigen voorkeur worden aangepast.

Voor meer informatie of een vrijblijvend gesprek over de mogelijkheden, neem gerust contact op.

Ruimtes & praktisch

Grondoppervlakte 5746 m²
Bruto vloeroppervlakte 234 m²
Inkomhal 1
Bureau 1
Toilet 2
Woonkamer 1
Keuken 1
Wasplaats 1
Nachthal 1
Slaapkamer 1
Slaapkamer 1
Badkamer 1
Badkamer 1
Dressing 1
Slaapkamer 1
Bemeubeld nee
Lift aanwezig nee

Energie

  • Renovatieverplichting: neen

Buitenkant & omgeving

P-score B

In de buurt

Landelijk
Woonkern
Rustig
Dorp

Ruimtes

Kadastraal inkomen € 25
Vonnissen nee
Bouwvergunning ja
Verkavelingsvergunning ja
As-built attest nee
Elektriciteitskeuring Nee, niet conform.
Voorkooprecht nee
Onder BTW-stelsel ja
Bestemming terrein Woonuitbreidingsgebied
O-peil Niet overstromingsgevoelig
Zonetype Niet van toepassing
Asbestattest aanwezig nee

Ligging

Beeldmateriaal

Afbeelding Moderne nieuwbouwwoning op een exclusief perceel te koop - Casteels Vastgoed
Afbeelding Moderne nieuwbouwwoning op een exclusief perceel te koop - Casteels Vastgoed
Afbeelding Moderne nieuwbouwwoning op een exclusief perceel te koop - Casteels Vastgoed
Afbeelding Moderne nieuwbouwwoning op een exclusief perceel te koop - Casteels Vastgoed
Afbeelding Moderne nieuwbouwwoning op een exclusief perceel te koop - Casteels Vastgoed
Afbeelding Moderne nieuwbouwwoning op een exclusief perceel te koop - Casteels Vastgoed

INTERESSE IN DIT PAND?

Heeft u interesse in dit pand? Laat uw gegevens na en wij contacteren u zo spoedig mogelijk.

    *verplichte velden

    Contacteer mij

    GELIJKAARDIGE PANDEN IN DE BUURT

    HOE KUNNEN WIJ JOU HELPEN?

    close

    VASTGOEDADVIES

    Tips en advies lezen om vastgoed te kopen of te verkopen? Schrijf je in op onze nieuwsbrief. Genoeg gelezen? Uitschrijven kan altijd, in één klik.